Budapest VI . Podmaniczky utca
Igazi belvárosi otthon a Podmaniczky utcában – csend, hangulat, harmónia.
Van valami különleges varázsa a Podmaniczky utcának.
Az épületek történelmi bája, a környék pezsgése és az a megnyugtató érzés, amikor hazaérkezel a város szívében – mégis egy csendes, udvari lakásba, ahol a belváros zaja már csak távoli moraj.
Ebben a rendezett, karbantartott, polgári hangulatú házban kínálunk megvételre egy 3. emeleti, 56 m²-es, plusz 9 m²-es galériával kiegészített lakást, amely egyszerre praktikus és meghitt.
A tágas nappali barátságos és világos, a galérián kialakított háló igazi kis kuckó, ahová jó esténként felmenni elcsendesedni.
A külön konyha saját spájzzsal pedig valódi ritkaság a belvárosban – praktikus, mégis hangulatos megoldás. A fürdő és a toalett külön helyiségben kapott helyet, a cirkó fűtés pedig kedvező fenntartási költségeket biztosít.
A közös költség mindössze 16 770 Ft, a rezsi pedig fogyasztás alapján fizetendő.
A lakás hangulata otthonos, nyugodt és harmonikus, miközben minden egy karnyújtásnyira elérhető.
Pár perc sétára található a 4-6-os villamos, az M3-as metró, trolik, kávézók, bisztrók, gyógyszertár, Lidl és Spar – minden, ami a kényelmes városi élethez kell.
Ez az otthon tökéletes választás mindazoknak, akik szeretik a belvárosi életstílust, de nem akarnak lemondani a csendről és a nyugalomról.
Ideális pároknak vagy egyedülállóknak, akik egy saját, karakteres és meghitt otthont keresnek Budapest szívében.
Lépjen be, és érezze meg, milyen egy valódi belvárosi otthon hangulata – ahol minden részlet a harmóniát szolgálja.
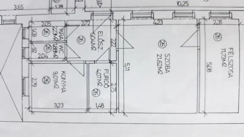
Az alaprajzot megtalálja a képek között – de a lakás valódi varázsát személyesen lehet igazán megtapasztalni.
Amennyiben felkeltette érdeklődését, keressen bizalommal – örömmel és szívélyesen körbevezetem.
Üdvözlettel,
Csulák László

Számunkra elsőrangú a magas szintű ügyfélkezelés, az etikus hozzáállás. Egy ingatlan vásárlás vagy bérbeadás, sok ember életének egyik legmeghatározóbb eseménye, amely kiemelt támogatást és figyelmet érdemel, ezért vagyunk mi, hogy ebben segítsünk.
Legyen szó, lakóingatlanról, üzlethelyiségről, családi házról, eladásról vagy bérbeadásról, kérd a szakmai segítségünket.
Amiben segíteni tudunk Neked:
- ingatlan bérbeadás,
- ingatlan értékesítés,
- ingatlan vásárlás,
- kapcsolatok az ingatlanügyletek során szükséges szakemberekhez (ügyvéd, közjegyző, hiteltanácsadó, energetikai tanúsítvány stb. )






















 Hungarian
Hungarian				 English
English